‘The new Bentini Headquarters makes its entrance into the community of Faenza as a landmark of architectural quality while, at the same time, blending into and interacting with the countryside and surrounding hills.
The project stands out for its linearity. Two parallel buildings, one designed for offices and the other serving as an archive, warehouse and services facility. Between the two there is a landscaped space in the shadow acting as a car park and also serving as an inner courtyard.
The landscape bursts into the built space. It does so through a transparent ground floor that cancels out any separation between the interior and exterior and has a 300 m² hanging garden on the top floor that overlooks the hillside and has lots of transparent features and wide openings onto the outside placing no bounds on views across the surrounding landscape .
The office building has a unitary, linear structure setback in relation to the road front and has been designed to the very highest quality standards, combining highly flexible interior spaces with a simple and well-organised floor plan on the various levels. The hanging garden may be used to host events and conferences, providing the chance to experience this corporate space opening up onto the city that accommodates it.
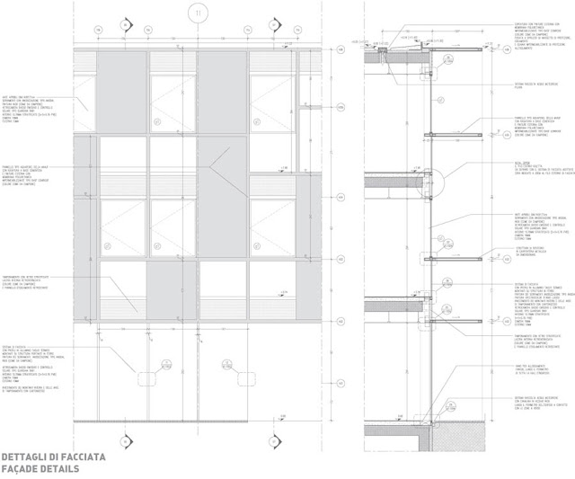
The front along the road gives the building a highly distinctive and unique character and has been constructed by placing a modular grid structure of adjustable solar filters over the curtain glass facade. This divides the facade into regular sections of varying size. This design feature makes perception of the building a constantly changing experience, according to the onlooker’s position in relation to the facade and the light illuminating it during the daytime, shaping the structures by means of shadows and, at the same time offering a sequence of dynamic, shimmering views of working life inside.
The rear side of the building is designed to maintain powerful visual continuity with the surrounding countryside through an all glass facade. The two facades are different from each other but share the same desire to open up towards the outside by means of transparency; they are shielded on the side over by the road and open to the countryside on the opposite side.’
Text by PIUARCH








Sem comentários:
Enviar um comentário